Build A Home On Your Own Lot in Orlando with AHC
Ace Home Construction offers flexible, high-quality construction services designed to bring your vision to life on your own lot in Orlando. Our end-to-end service ensures a smooth, stress-free experience from start to finish, whether you already own land or need help finding the ideal spot.

Own Land?
We’re ready to start building on your property, turning your vision into a reality with expert guidance at every step.

Looking for Land
Our team can help you find the perfect piece of land that suits your goals and desired location.
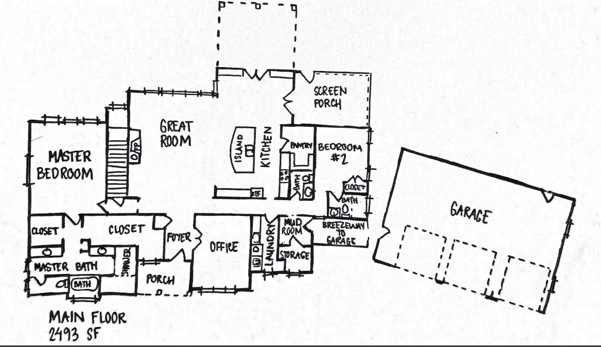
Step 1: Select Floorplan
We begin by guiding you through a variety of floor plans, helping you choose one that aligns perfectly with your vision, lifestyle, and practical needs.
We make sure the layout is functional, beautiful, and unique to you.


Step 2: Design
Next, visit our design center to explore a vast array of finishes, materials, and fixtures, where you can customize every aspect to make the space truly yours.
Not design-savvy? Our experts are available to guide you through each decision, so you feel confident in your choices.
Step 3: Financing
Our financial experts work with you to establish a flexible financing plan that meets your budget and project scope. We provide transparent cost breakdowns and schedules, so you know exactly what to expect at every stage.
With our financial guidance, we ensure your investment is secure, transparent, and manageable.
We use our vendor relationships to pass down great discounts to your projects so you can see real savings.


Step 4: Building
AHC takes care of all the permitting and compliance requirements specific to building a home in Orlando, making sure everything is handled efficiently.
Once approved, construction begins, using only the highest quality materials for lasting durability, aesthetics, and environmental responsibility.
We keep you updated at every phase, checking in regularly and involving you in key decisions to ensure a smooth and worry-free experience.
As construction wraps up, we conduct thorough final inspections to ensure every detail meets our rigorous standards and your expectations.
Step 5: Move In
Once approved, you receive the keys to your new space. We’ll also provide a comprehensive walkthrough, covering all the essential features, maintenance tips, and warranty details.
From here, you’re ready to move in and enjoy the space you helped create!


The AHC Difference
Personalized Homes - Enjoy full customization with a design center that offers extensive options for countertops, cabinets, flooring, and more.
End-to-End Construction - From initial design to final touches, we handle all phases of the build-on-your-lot project, including construction, plumbing, and more.
Comprehensive Warranties - We stand by our work, offering a one-year installation warranty to ensure your peace of mind long after the project is completed.
Customer-Centered - Our team is here for you, with responsive service, transparency, and a commitment to staying on schedule and within budget.





